3-СТАЙНИ И МНОГОСТАЙНИ АПАРТАМЕНТИ в Комплекс Охридско езеро парк в центъра на София до парк Възраждане и Mall of Sofia – Акт16-2026
- Тип имот: 3-стаен Апартамент
- Тип сделка: FOR SALE
- Местоположение: .СОФИЯ
- Район: гр. София ЦЕНТЪР зона запад
- Квартал: Center , Zona B-5
- Улица: Ул. Охридско езеро
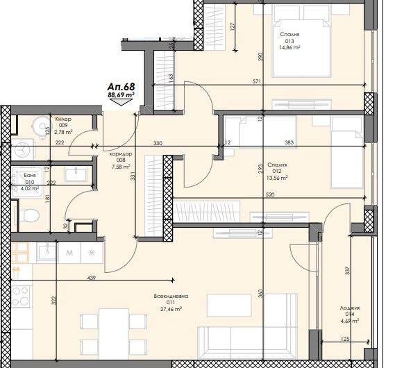
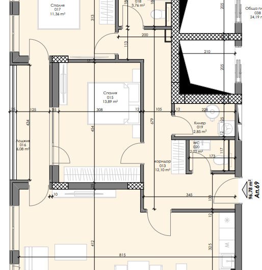
- Спални: 2
- Бани: 1,2
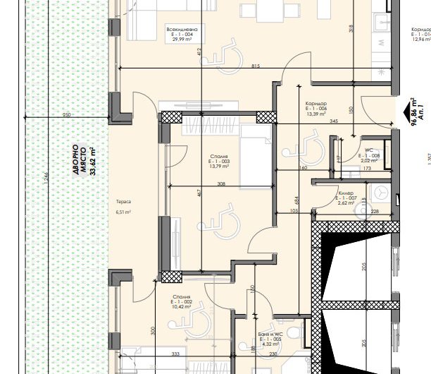
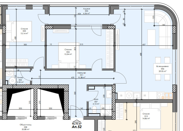
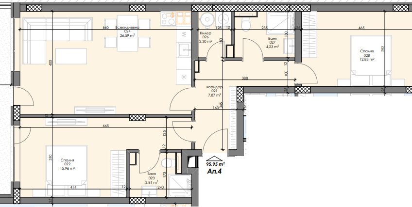
- Площ: 89 - 186 м2
- Етажност: 17
- Година: 2026
- Property ID: 37793
Характеристики
Details




Комплекс от 12 жилищни сгради с магазини, ресторант-градина, изцяло озеленен вътрешен двор с детска площадка.
В комплекса са проектирани апартаменти от 69 кв.м. до 300 кв.м. – ателиета, жилища с една, две, три и четири спални. Партерните апартаменти са с прилежащи дворни тераси, пентхауси с просторни тераси и панорамни гледки към София и Витоша. Налични са подземни и наземни паркоместа и гаражи. Фасадите са окачени, вентилируеми, с изолация от каменно-минерална вата, дограмата е аReynaers , Серия CS 77 light с троен 44 мм стъклопакет.
Всеки апартамент е с монтирана индивидуална термопомпа, захранваща подово отопление (монтирано във всяка стая), или с изводи за климатици.
• Луксозни общи части и висококачествено строителство
• 12 сгради с различна етажност /до 17 етаж/
• 881 апартамента, с 1, 2, 3 и 4 спални
• 9 магазина
• Ресторант – градина
• 982 паркоместа и гаражи
• Детска площадка
• Апартаменти със собствен, озеленен двор
• Пентхауси – с просторни тераси и прекрасна гледка
• Озеленен, пешеходен вътрешен двор
• Управление и подръжка 24/7 с фирма, контролирана от инвеститора
• Висока инвестиционна стойност и гарантирана доходност
Отопление : Климатици / Термопомпа / Подово отопление
Очакван срок на изграждане на сградите -2027 г.
Разрешение за строеж 09.2023г. Собственост ще се прехвърля само на Акт16.
| Схеми на плащане | схема стандарт | схема 1 | схема 2 | схема 3 | схема 4 |
| Предв.д-р | 20% | 20% | 50% | 70% | 90% |
| Акт 14 | 20% | 20% | 20% | 10% | 0% |
| Дограма | 20% | 10% | 10% | 0% | |
| Акт 15 | 20% | 10% | 0% | 0% | |
| Акт 16 | 60% | 20% | 10% | 10% | 10% |
Предимства на сградите:
- Висококачествено строителство
- Енергоефективност – подово отопление с индивидуална термопомпа или заготовка за климатик
- Частично вентилируема фасада с каменно-минерална вата
- Алуминиева дограма с троен стъклопакет
- Озеленен, пешеходен вътрешен двор
Етап на строителство 10.2023– Изкопни дейности, 08.2024-изграждане на 4-та плоча. Комплексът ще се изгражда и въвежда в експлоатация едновременно!



3-стайни апартаменти с 2 спални


4-стайни апартаменти с 3 спални


5-стайни апартаменти с 4 спални


МАГАЗИНИ И РЕСТОРАНТИ


| Сграда | Вид имот | Етаж | Имот № | Обща цена без ДДС | РЕЗЕРВ | Обща застр площ | Застр.площ |
| 1 | Маг | 1 | Магазин 2 | 900 541 € | 439,29 | 372,19 | |
| 2 | Маг | 1 | Магазин 1 | 926 649 € | 452,02 | 382,98 | |
| 10 | Маг | 1 | Магазин 1 | 715 762 € | 349,15 | 295,77 |
ПОДЗЕМНИ ПАРКОМЕСТА, ГАРАЖИ



.
.
НАДЗЕМНИ ПАРКОМЕСТА / ГАРАЖИ

















- ID: 37793
- Views: 38